欢迎莅临2017工博会达诺巴特展位
日期:2017/10/27 来源:机电商报
摘要:欢迎莅临2017工博会达诺巴特展位
隶属于达诺巴特集团的达诺巴特(DANOBAT)钣金部将于2017年11月7日-11日参加在上海国家会议中心举办的第19届中国国际工业博览会。欢迎您莅临我们的展位:2H-C010。
达诺巴特钣金部是激光切割系统、冲压方案、自动折弯设备、冲剪、冲+激光组合设备以及完整的柔性化生产线制造商,能够提供最适用的解决方案和高效的技术,是您在钣金市场最完美的合作伙伴。
此次展出的达诺巴特 卷材进料激光切割 生产线可直接使用各种卷材原料,采用纤维激光技术和紧凑设计理念。
通过使用激光,系统能够自动并连续切割出各种工件,大大提高了生产力和生产效率。
通过卷材替代板材,可节约多达 15% 的原料. 实现各种原料的更优利用创新性替代普通激光切割和冲压线。
用纤维激光技术切割出各种工件的高效解决方案。最小料耗,意味着工件成本更低。
综合了激光技术和金属卷材料的优势,意味着高产能和柔性兼顾。
节拍稳定,板材上下料时间损耗不复存在,而且不需要模具。
根据具体需求和工件特点定制设计。
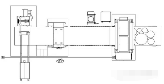
整线包括:1- 开卷;2- 平整;3- 缓冲;4- 激光单元;5- 工件下料系统,如下图所示
达诺巴特卷材进给激光切割机床设计利用单切头达到最高生产能力,但是,也可以集成多个切头,从而成倍增加生产力和加工效率。根据需要,切头可以串列或者并列。
应用案例(适用于所有卷料钣金切割加工,以下仅举几个例子)
厨具
钢板仓圆锥顶
更多方案,期待您莅临咨询!
文件阅读
相关思考






